| 沿線・駅 | JR 東海道線「藤沢」駅 徒歩12分 江ノ島電鉄「藤沢」駅 徒歩18分 |
|---|---|
所在地 |
神奈川県神奈川県藤沢市弥勒寺1 |
| 敷金 | 0ヶ月分 |
| 礼金 | 0ヶ月分 |
| 仲介手数料 | 1.1ヶ月分+消費税 |
オートロック 駐車場 ドッグラン 空室
-
-
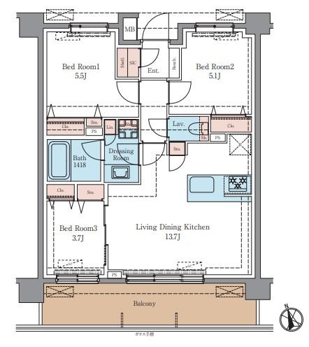
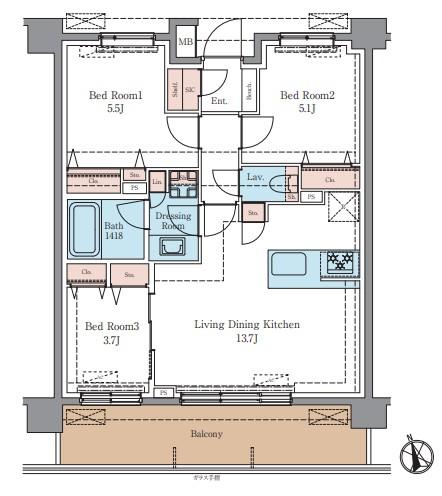
間取り

-
地図

LUXENA⁺ PAWS藤沢
― ラグゼナプラス パウズ藤沢 ―
JR「藤沢」駅徒歩12分、2026年2月竣工予定の新築ハイグレード賃貸。
天然芝の屋上ドッグランやトリミングルームを備え、ペットとの暮らしを贅沢に彩る設備が充実。
滑りにくいフローリング、消臭・防汚壁紙、24時間ペット相談サービス「アニコム24」など、細部までこだわり抜いたペットフレンドリー設計。
食洗機・タッチレス水栓・ハンズフリーキー・ナノイー発生器など快適性も兼備。
1LDK~3LDK、専有面積35.18㎡~66.04㎡、敷金・礼金0ヶ月(一部条件あり)。
大型犬・多頭飼いも相談可能。藤沢で、ペットと共に暮らす理想の住まいが、ここに。
藤沢駅徒歩12分、新築・ペット共生型賃貸「LUXENA⁺ PAWS藤沢」誕生。天然芝の屋上ドッグランやトリミングルーム完備、滑りにくい床材や消臭壁紙など愛犬・愛猫との快適な暮らしを追求。ハンズフリーキーや食洗機など設備も充実。
| 物件名 | LUXENA+PAWS藤沢(ラグゼナプラス パウズ藤沢) | カナヨミ | LUXENA+PAWS藤沢(ラグゼナプラス パウズ藤沢) |
|---|---|---|---|
| 所在地 | 神奈川県神奈川県藤沢市弥勒寺1 | めやす賃料 |
210,896円
めやす賃料とは |
| 沿線・駅 | JR 東海道線「藤沢」駅 徒歩12分 江ノ島電鉄「藤沢」駅 徒歩18分 |
入居日 | 2026年2月下旬 |
| 構造 | 鉄筋コンクリート7階建 | 取引形態 | 一般媒介 |
| 築年月 | 2026-02-27 | 損保 | 貸主指定 |
| 駐車場 | 最新の空き情報はお問い合わせください。 機械式(11,000~16,500円) 平置き(11,000、22,000円) 敷金1ヵ月、契約事務手数料1.1ヵ月 |
備考 | 新築のため、変更可能性有 ■敷金:小型犬・猫2匹まで+1ヵ月。 大型犬、中型犬、小型犬・猫4匹まで+2ヶ月 ■貸主指定の保険に加入のこと。 ■ペット飼育時提出書類有:登録費用5500円、ペット追加時登録費用3300円 ■駐車場:機械式11000円~16500円、平置き22000円、敷金1ヵ月、事務手数料1.1ヵ月 ■バイク置場:5500円、敷金1ヵ月、事務手数料1.1ヵ月 ■駐輪場:220円※入居中に新規使用の場合、ステッカー発行手数料1100円 ■引越業者指定 ■退去時にかかるクリーニング費:エアコン清掃代19800円/台、室内清掃代94600円 ■保証会社:エポス保証会社 初回保証料:月額総賃料の50% ※貸主の認める法人契約の場合、加入不要。但し、敷金1ヵ月積増。 ※仲介手数料は原則貸主0.5か月、借主0.5か月ですが、この物件に関しましては借主1か月分となります(税別)。 |
| 水回り・トイレ | バス・トイレ別,シャワー水栓付独立洗面台,洗浄機能付トイレ,追焚機能付風呂,浴室乾燥機,室内洗濯機置き場,グリル付キッチン |
|---|---|
| 設備・サービス | モニター付インターフォン,インターネット対応,エアコン,BS,オートロック,駐輪場,エレベーター,フローリング ,都市ガス,敷地内ゴミ置き場・宅配ロッカー,グリル付3口コンロ,トリミングルーム・箱型乾燥機,天然芝ドッグラン(屋上) |
| ペット専用設備 | ドッグラン,ペット用床材,ペット対応クロス(見切り材) |
この物件で他に空いている部屋
| 部屋番号 | 間取り | 面積 | 賃料 | 共益費 | 敷金 | 礼金 | 詳細 | 空室 | お気に入り |
|---|---|---|---|---|---|---|---|---|---|
| 404 | 2SLDK | 65.28㎡ | 207,000円 | 20000円 | 0ヶ月分 | 0ヶ月分 | 詳細へ | 空室 | |
| 204 | 2SLDK | 65.28㎡ | 205,000円 | 20000円 | 0ヶ月分 | 0ヶ月分 | 詳細へ | 空室 | |
| 404 | 2SLDK | 65.28㎡ | 207,000円 | 20000円 | 0ヶ月分 | 0ヶ月分 | 詳細へ | 空室 | |
| 102 | 2SLDK | 62.97㎡ | 202,000円 | 20000円 | 0ヶ月分 | 0ヶ月分 | 詳細へ | 空室 | |
| 206 | 3LDK | 61.31㎡ | 192,000円 | 20000円 | 0ヶ月分 | 0ヶ月分 | 詳細へ | 空室 | |
| 105 | 2LDK | 65.31㎡ | 208,000円 | 20000円 | 0ヶ月分 | 0ヶ月分 | 詳細へ | 空室 | |
| 303 | 2SLDK | 66.04㎡ | 212,000円 | 20000円 | 0ヶ月分 | 0ヶ月分 | 詳細へ | 空室 | |
| 305 | 2SLDK | 62.97㎡ | 208,000円 | 20000円 | 0ヶ月分 | 0ヶ月分 | 詳細へ | 空室 | |
| 502 | 1LDK | 35.18㎡ | 123,000円 | 10000円 | 0ヶ月分 | 0ヶ月分 | 詳細へ | 空室 | |
| 101 | 2SLDK | 65.28㎡ | 200,000円 | 20000円 | 0ヶ月分 | 0ヶ月分 | 詳細へ | 空室 | |
| 203 | 2SLDK | 66.04㎡ | 210,000円 | 20000円 | 0ヶ月分 | 0ヶ月分 | 詳細へ | 空室 | |
| 405 | 2LDK | 62.97㎡ | 209,000円 | 20000円 | 0ヶ月分 | 0ヶ月分 | 詳細へ | 空室 | |
| 701 | 1LDK | 35.18㎡ | 126,000円 | 10000円 | 0ヶ月分 | 0ヶ月分 | 詳細へ | 空室 | |
| 704 | 3LDK | 65.28㎡ | 210,000円 | 20000円 | 0ヶ月分 | 0ヶ月分 | 詳細へ | 空室 | |
| 603 | 2LDK | 66.04㎡ | 215,000円 | 20000円 | 0ヶ月分 | 0ヶ月分 | 詳細へ | 空室 | |
| 306 | 3LDK | 61.31㎡ | 194,000円 | 20000円 | 0ヶ月分 | 0ヶ月分 | 詳細へ | 空室 | |
| 308 | 2LDK | 65.31㎡ | 215,000円 | 20000円 | 0ヶ月分 | 0ヶ月分 | 詳細へ | 空室 | |
| 207 | 3LDK | 65.59㎡ | 209,000円 | 20000円 | 0ヶ月分 | 0ヶ月分 | 詳細へ | 空室 | |
| 702 | 1LDK | 35.18㎡ | 126,000円 | 10000円 | 0ヶ月分 | 0ヶ月分 | 詳細へ | 空室 |













